
Đặc điểm nổi bật của bồn cầu TOTO MS188VKW23/T53P100VR kèm nắp rửa điện tử Washlet TCF47360GAA dòng S7
Bồn cầu MS188VKW23/T53P100VR là một trong những sản phẩm bồn cầu cao cấp tiêu biểu của thương hiệu thiết bị vệ sinh TOTO nổi tiếng đến từ Nhật Bản. Sản phẩm là sự kết hợp hoàn hảo giữa thiết kế hiện đại, công nghệ tiên tiến và sự tiện nghi tuyệt đối, mang đến trải nghiệm sử dụng hoàn hảo cho người dùng.
Sản phẩm thiết kế thân cầu và két nước được đúc nguyên khối mang lại sự liền mạch và tạo nên một tổng thể vững chắc, hài hòa. Thiết kế này không chỉ giúp bồn cầu trở nên thanh lịch và sang trọng hơn, mà còn loại bỏ các khe hở thường thấy ở bồn cầu hai khối, từ đó giúp việc vệ sinh trở nên dễ dàng hơn.
Toàn bộ phần thân bồn cầu TOTO MS188VKW23/T53P100VR được làm từ chất liệu sứ vệ sinh cao cấp với bề mặt hoàn thiện ứng dụng công nghệ men CeFiONtect độc quyền của TOTO. Đây là lớp men siêu mịn có khả năng chống bám dính và chống bám bẩn vượt trội, giúp bề mặt luôn sáng bóng và hạn chế tối đa sự phát triển của vi khuẩn, nấm mốc.
Bên cạnh đó, mẫu bồn cầu này còn thiết kế vành kín giúp loại bỏ khoảng trống ở bên trong khiến cho vi khuẩn và chất thải không có chỗ bám vào. Nhờ đó, người dùng tiết kiệm được thời gian cũng như công sức để lau chùi, vệ sinh.

Không chỉ dừng lại ở đó, bồn cầu 1 khối TOTO MS188VKW23/T53P100VR còn được kết hợp với nắp rửa điện tử Washlet TCF47360GAA thuộc dòng S7. Nắp rửa Washlet này được thiết kế giấu dây, tạo nên vẻ ngoài gọn gàng và thẩm mỹ, đồng thời đảm bảo an toàn khi sử dụng.
Washlet TCF47360GAA tích hợp hàng loạt tính năng thông minh giúp nâng tầm trải nghiệm vệ sinh cá nhân cho người sử dụng. Những tính năng nổi bật có thể kể đến như:
- Nắp đóng/mở tự động
- Phun sương tráng lóng bàn cầu và vệ sinh vòi rửa bằng công nghệ nước điện phân khử khuẩn Ewater+
- Vòi rửa massage đa chức năng với chế độ đưa bọt khí vào nước
- Sưởi ấm bệ ngồi, sấy khô và khử mùi

Một trong những điểm nổi bật khác của bồn cầu nắp điện tử MS188VKW23/T53P100VR chính là hệ thống xả xoáy Tornado. Không giống như các hệ thống xả thông thường, Tornado tạo ra luồng nước xoáy mạnh mẽ 360 độ giúp cuốn trôi mọi chất bẩn nhanh chóng và hiệu quả mà vẫn vận hành êm ái, hạn chế tiếng ồn tối đa.
Ngoài hiệu suất xả ưu việt, công nghệ Tornado còn giúp tiết kiệm nước một cách đáng kể, phù hợp với xu hướng sống xanh, tiết kiệm tài nguyên và thân thiện với môi trường.

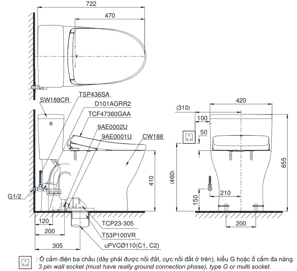
Bản vẽ kỹ thuật bồn cầu TOTO MS188VKW23/T53P100VR
Đại lý ủy quyền chính hãng của TOTO tại khu vực Hà Đông
Showroom Cường Quốc tự hào là đại lý phân phối ủy quyền chính hãng tại Hà Đông của thương hiệu TOTO – một trong những thương hiệu hàng đầu thế giới trong lĩnh vực thiết bị vệ sinh đến từ Nhật Bản. Nổi tiếng với công nghệ tiên tiến, thiết kế tinh tế và tính năng thông minh, thiết bị vệ sinh TOTO mang lại trải nghiệm hoàn hảo cho người dùng.
Nằm tại đường Lê Trọng Tấn - Hà Đông - Hà Nội, showroom TOTO Cường Quốc mang đến không gian trưng bày hiện đại và sang trọng, giúp khách hàng dễ dàng trải nghiệm các sản phẩm thực tế trước khi đưa ra lựa chọn.

Với sứ mệnh mang đến cho khách hàng những sản phẩm chất lượng cao và dịch vụ vượt trội, chúng tôi cam kết cung cấp đầy đủ các dòng sản phẩm chính hãng từ TOTO bao gồm bồn cầu, chậu lavabo, vòi sen, bồn tắm... Bên cạnh đó là chế độ bảo hành đầy đủ, giá cả cạnh tranh cùng nhiều chương trình ưu đãi hấp dẫn.
Đến với showroom Lê Trọng Tấn, khách hàng không chỉ sở hữu những sản phẩm đẳng cấp từ TOTO mà còn nhận được sự phục vụ chuyên nghiệp và đáng tin cậy, khẳng định giá trị và uy tín của một đại lý phân phối ủy quyền chính hãng tại khu vực.


Showroom TOTO Cường Quốc tại Lê Trọng Tấn - Hà Đông
Khách hàng đánh giá, nhận xét
0/5
0 đánh giá & nhận xétBạn đã dùng sản phẩm này?
Gửi đánh giá của bạnHỏi và đáp (0 bình luận)