
Đặc điểm nổi bật của bồn cầu treo tường TOTO CW542HME5UNW1/TCF802C2Z/WH172AAT/MB175M#SS nắp rửa điện tử Washlet seri RW
TOTO CW542HME5UNW1/TCF802C2Z/WH172AAT/MB175M#SS là một trong những sản phẩm bồn cầu cao cấp, kết hợp hoàn hảo giữa công nghệ tiên tiến và thiết kế hiện đại tinh tế. Sản phẩm này mang lại trải nghiệm sử dụng tiện nghi, sang trọng và hoàn toàn khác biệt so với các dòng bồn cầu truyền thống.
Sở hữu kiểu dáng thân chữ D, bồn cầu TOTO CW542HME5UNW1/TCF802C2Z/WH172AAT/MB175M#SS thiết kế treo tường mang đến cảm giác không gian vệ sinh gọn gàng, thoáng đãng và rộng rãi. Nhờ cơ chế lắp đặt két nước âm tường, phần thân bồn cầu không chạm sàn giúp việc vệ sinh khu vực xung quanh trở nên dễ dàng hơn.
Điểm nổi bật nhất của sản phẩm này chính là nắp rửa điện tử Washlet giấu dây thuộc seri RW. Nắp Washlet RW được tích hợp nhiều chức năng thông minh như:
- Vòi rửa phun bọt khí massage đa chức năng gồm rửa trước, rửa sau, rửa massage.
- Sưởi ấm bệ ngồi, khử mùi.
- Xả tự động.
Đặc biệt, nắp rửa điện tử này còn tích hợp công nghệ nước điện phân Ewater+ giúp khử khuẩn vệ sinh vòi rửa, đảm bảo an toàn sức khỏe cho người sử dụng.

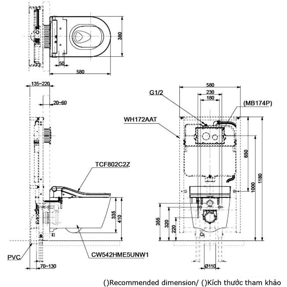
Bản vẽ kỹ thuật bồn cầu nắp rửa điện tử TOTO CW542HME5UNW1/TCF802C2Z/WH172AAT/MB175M#SS treo tường
Bồn cầu treo tường TOTO CW542HME5UNW1/TCF802C2Z/WH172AAT/MB175M#SS còn được trang bị công nghệ xả Tornado. Đây là công nghệ xả xoáy mạnh mẽ và hiệu quả, giúp cuốn trôi mọi chất bẩn một cách nhanh chóng mà không gây tiếng ồn và tiết kiệm nước tối đa.
Mặt khác, bồn cầu được tráng lớp men sứ CeFiONtect độc quyền của TOTO giúp bề mặt luôn sáng bóng, chống bám bẩn và vi khuẩn hiệu quả, đảm bảo sản phẩm luôn sạch sẽ và dễ dàng vệ sinh sau thời gian dài sử dụng.
Không chỉ vậy, bảng điều khiển từ xa đi kèm giúp người dùng dễ dàng thao tác các chức năng chỉ bằng một chạm nhẹ. Bảng điều khiển được thiết kế tinh tế, rõ ràng, dễ sử dụng và phù hợp với mọi đối tượng người dùng.
Đại lý ủy quyền chính hãng của TOTO tại khu vực Hà Đông
Showroom Cường Quốc tự hào là đại lý phân phối ủy quyền chính hãng tại Hà Đông của thương hiệu TOTO – một trong những thương hiệu hàng đầu thế giới trong lĩnh vực thiết bị vệ sinh đến từ Nhật Bản. Nổi tiếng với công nghệ tiên tiến, thiết kế tinh tế và tính năng thông minh, thiết bị vệ sinh TOTO mang lại trải nghiệm hoàn hảo cho người dùng.
Nằm tại đường Lê Trọng Tấn - Hà Đông - Hà Nội, showroom TOTO Cường Quốc mang đến không gian trưng bày hiện đại và sang trọng, giúp khách hàng dễ dàng trải nghiệm các sản phẩm thực tế trước khi đưa ra lựa chọn.


Với sứ mệnh mang đến cho khách hàng những sản phẩm chất lượng cao và dịch vụ vượt trội, chúng tôi cam kết cung cấp đầy đủ các dòng sản phẩm chính hãng từ TOTO bao gồm bồn cầu, chậu lavabo, vòi sen, bồn tắm... Bên cạnh đó là chế độ bảo hành đầy đủ, giá cả cạnh tranh cùng nhiều chương trình ưu đãi hấp dẫn.
Đến với showroom Lê Trọng Tấn, khách hàng không chỉ sở hữu những sản phẩm đẳng cấp từ TOTO mà còn nhận được sự phục vụ chuyên nghiệp và đáng tin cậy, khẳng định giá trị và uy tín của một đại lý phân phối ủy quyền chính hãng tại khu vực.


Showroom TOTO Cường Quốc tại Lê Trọng Tấn - Hà Đông
Khách hàng đánh giá, nhận xét
0/5
0 đánh giá & nhận xétBạn đã dùng sản phẩm này?
Gửi đánh giá của bạnHỏi và đáp (0 bình luận)