
Đặc điểm nổi bật của bồn cầu treo tường TOTO LP Series CW812RA/TCF23410AAA/WH172A/MB174P#SS kèm nắp rửa điện tử Washlet C2
Trong xu thế hiện đại hóa không gian sống, việc lựa chọn thiết bị vệ sinh phù hợp vừa đảm bảo tính thẩm mỹ, vừa mang lại sự tiện nghi cao cấp đang trở thành ưu tiên hàng đầu của nhiều gia đình. Một trong những sản phẩm nổi bật hiện nay chính là bồn cầu treo tường TOTO CW812RA/TCF23410AAA/WH172A/MB174P#SS.
Bồn cầu TOTO CW812RA/TCF23410AAA/WH172A/MB174P#SS sở hữu kiểu dáng hiện đại, được thiết kế gọn gàng, treo tường không chạm sàn, giúp tối ưu hóa không gian phòng tắm, đồng thời tạo cảm giác rộng rãi, thoáng đãng hơn cho cả những khu vực có diện tích hạn chế.
Với dạng thân kín, sản phẩm còn giúp hạn chế tối đa sự bám bụi bẩn và vi khuẩn ở các khe kẽ, dễ dàng lau chùi và vệ sinh, duy trì sự sạch sẽ tuyệt đối theo thời gian.
Được chế tạo từ sứ vệ sinh cao cấp tráng men CeFiOntect độc quyền của TOTO, bồn cầu không chỉ sở hữu bề mặt sáng bóng, nhẵn mịn mà còn có khả năng chống bám bẩn và kháng khuẩn hiệu quả. Lớp men CeFiOntect vô cùng bền chắc giúp hạn chế tối đa cặn bẩn và vết ố bám trên bề mặt, giữ cho sản phẩm luôn như mới, đồng thời góp phần tiết kiệm thời gian và công sức vệ sinh.

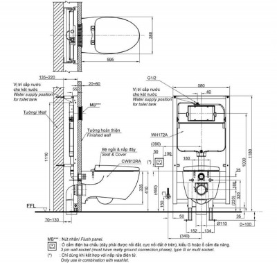
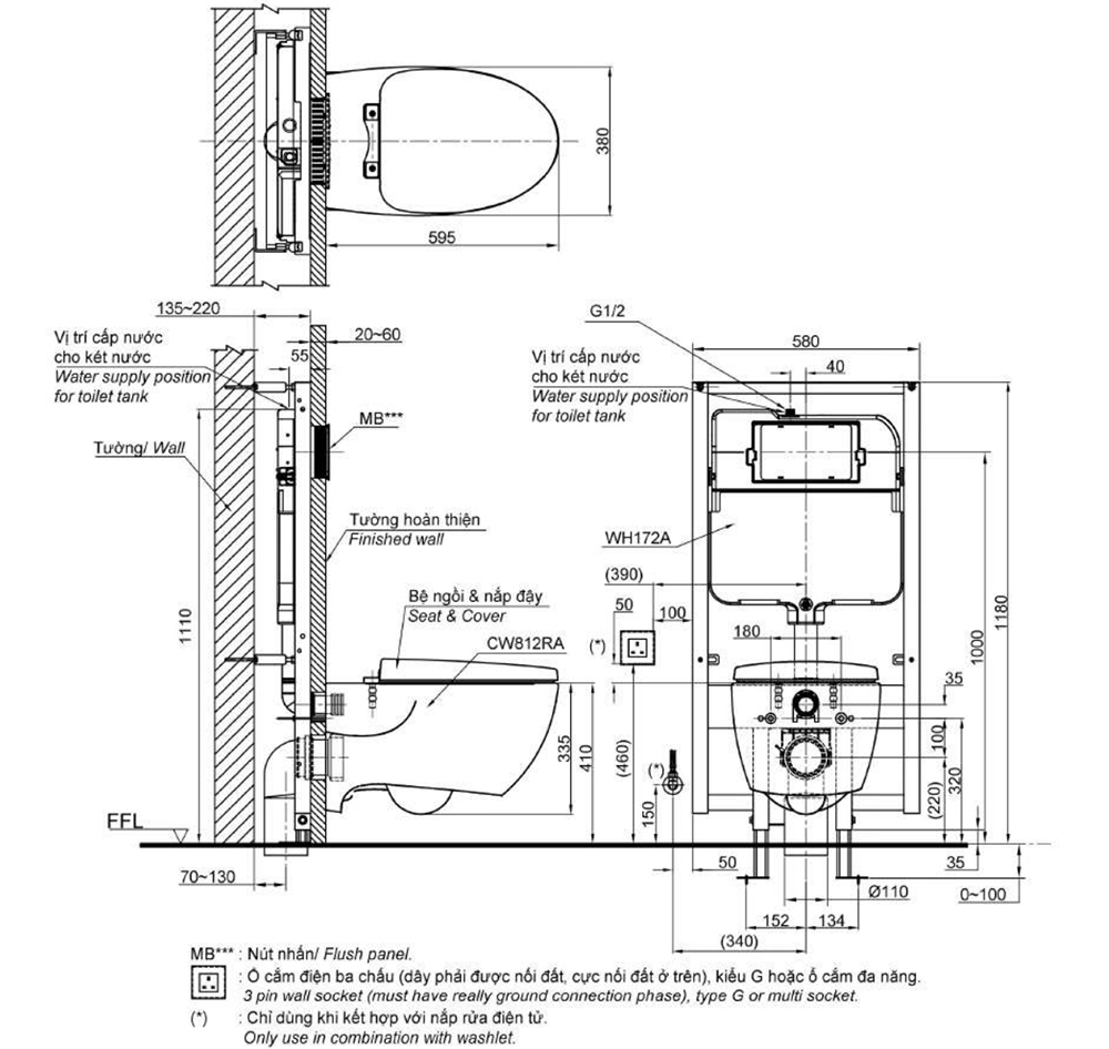
Bản vẽ kỹ thuật bồn cầu TOTO CW812RA/TCF23410AAA/WH172A/MB174P#SS
Điểm nổi bật tiếp theo của bồn cầu TOTO CW812RA/TCF23410AAA/WH172A/MB174P#SS là hệ thống xả xoáy Tornado. Đây là công nghệ xả tiên tiến, không chỉ cuốn trôi mọi chất bẩn một cách nhanh chóng và triệt để, mà còn giảm thiểu tiếng ồn khi xả nước cũng như tiết kiệm nước tối ưu, góp phần bảo vệ môi trường.
Sản phẩm còn được kết hợp cùng nắp rửa điện tử Washlet dòng C2 tiên tiến, nổi bật với những tính năng hiện đại như:
- Vòi rửa massage đa chức năng, rửa sạch và êm ái
- Sưởi ấm bệ ngồi, sấy khô, khử mùi
- Tự động vệ sinh vòi rửa trước và sau khi sử dụng
- Công nghệ nước điện phân khử khuẩn Ewater+ (vệ sinh vòi rửa)
Đại lý ủy quyền chính hãng của TOTO tại khu vực Hà Đông
Showroom Cường Quốc tự hào là đại lý phân phối ủy quyền chính hãng tại Hà Đông của thương hiệu TOTO – một trong những thương hiệu hàng đầu thế giới trong lĩnh vực thiết bị vệ sinh đến từ Nhật Bản. Nổi tiếng với công nghệ tiên tiến, thiết kế tinh tế và tính năng thông minh, thiết bị vệ sinh TOTO mang lại trải nghiệm hoàn hảo cho người dùng.
Nằm tại đường Lê Trọng Tấn - Hà Đông - Hà Nội, showroom TOTO Cường Quốc mang đến không gian trưng bày hiện đại và sang trọng, giúp khách hàng dễ dàng trải nghiệm các sản phẩm thực tế trước khi đưa ra lựa chọn.


Với sứ mệnh mang đến cho khách hàng những sản phẩm chất lượng cao và dịch vụ vượt trội, chúng tôi cam kết cung cấp đầy đủ các dòng sản phẩm chính hãng từ TOTO bao gồm bồn cầu, chậu lavabo, vòi sen, bồn tắm... Bên cạnh đó là chế độ bảo hành đầy đủ, giá cả cạnh tranh cùng nhiều chương trình ưu đãi hấp dẫn.
Đến với showroom Lê Trọng Tấn, khách hàng không chỉ sở hữu những sản phẩm đẳng cấp từ TOTO mà còn nhận được sự phục vụ chuyên nghiệp và đáng tin cậy, khẳng định giá trị và uy tín của một đại lý phân phối ủy quyền chính hãng tại khu vực.


Showroom TOTO Cường Quốc tại Lê Trọng Tấn - Hà Đông
Khách hàng đánh giá, nhận xét
0/5
0 đánh giá & nhận xétBạn đã dùng sản phẩm này?
Gửi đánh giá của bạnHỏi và đáp (0 bình luận)