
Đặc điểm nổi bật của bồn cầu treo tường TOTO CW812RA/TCF24410AAA/WH172A/MB174P#WH kèm nắp rửa điện tử Washlet dòng C5
Bồn cầu TOTO CW812RA/TCF24410AAA/WH172A/MB174P#WH là một trong những sản phẩm cao cấp được thiết kế nhằm mang lại sự tiện nghi tối ưu và trải nghiệm vệ sinh hiện đại cho người dùng. Với sự kết hợp hoàn hảo giữa công nghệ tiên tiến, thiết kế tinh tế và vật liệu cao cấp, sản phẩm không chỉ mang đến hiệu suất sử dụng vượt trội mà còn góp phần nâng cao vẻ đẹp không gian phòng tắm.
Một trong những điểm nhấn đầu tiên khi nhắc đến mẫu bồn cầu này chính là thiết kế treo tường hiện đại. Khác biệt hoàn toàn so với các loại bồn cầu đặt sàn truyền thống, thiết kế treo tường giúp giải phóng không gian phía dưới, tạo cảm giác phòng tắm rộng rãi, thoáng đãng hơn.
Đồng thời, việc không tiếp xúc trực tiếp với sàn nhà cũng giúp việc vệ sinh sàn phòng tắm trở nên dễ dàng và nhanh chóng hơn, giảm thiểu sự tích tụ của bụi bẩn và vi khuẩn.
Chất liệu cấu thành nên bồn cầu CW812RA/TCF24410AAA/WH172A/MB174P#WH là sứ vệ sinh cao cấp được phủ men CeFiONtect độc quyền của TOTO. Lớp men này tạo ra một bề mặt siêu nhẵn mịn có khả năng chống bám dính và chống bám bẩn vượt trội, giúp ngăn ngừa sự hình thành của vi khuẩn, nấm mốc và cặn bẩn bề mặt.
Cùng với đó, thiết kế vành kín không khoảng trống của bàn cầu cũng là một điểm cộng lớn, giúp ngăn chặn tối đa sự tích tụ của vi khuẩn và bụi bẩn ở những vị trí khó vệ sinh. Từ đó, người dùng không cần phải tốn quá nhiều thời gian và công sức để vệ sinh.

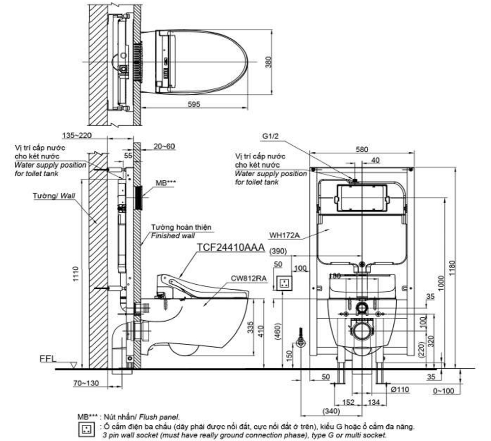
Bản vẽ kỹ thuật bồn cầu TOTO CW812RA/TCF24410AAA/WH172A/MB174P#WH
Bồn cầu treo tường TOTO CW812RA/TCF24410AAA/WH172A/MB174P#WH còn gây ấn tượng khi được kết hợp với nắp rửa điện tử Washlet TCF24410AAA. Nắp rửa điện tử này sở hữu nhiều chức năng hiện đại và tiện dụng, mang đến trải nghiệm vệ sinh cá nhân tối ưu cho người sử dụng. Một số chức năng có thể kể đến như:
- Phun sương lòng bán cầu trước khi sử dụng
- Sưởi ấm bệ ngồi, sấy khô và khử mùi
- Vòi rửa phun bọt khí massage đa chức năng
- Tự động vệ sinh vòi rửa trước và sau khi sử dụng
- Vệ sinh vòi rửa bằng nước điện phân khử khuẩn Ewater+
Điểm cộng lớn tiếp theo của TOTO CW812RA/TCF24410AAA/WH172A/MB174P#WH chính là được trang bị hệ thống xả xoáy Tornado. Khác với các hệ thống xả thông thường, công nghệ Tornado tạo ra dòng nước xoáy 360 độ mạnh mẽ, rửa trôi mọi vết bẩn chỉ sau một lần xả, đảm bảo bồn cầu luôn sạch sẽ.
Đặc biệt, hệ thống này hoạt động cực kỳ êm ái, không gây tiếng ồn khó chịu, mang lại không gian yên tĩnh cho phòng tắm. Hơn nữa, với công nghệ xả này lượng nước tiêu thụ được tối ưu hóa đáng kể, giúp tiết kiệm chi phí sinh hoạt và góp phần bảo vệ môi trường.
Đại lý ủy quyền chính hãng của TOTO tại khu vực Hà Đông
Showroom Cường Quốc tự hào là đại lý phân phối ủy quyền chính hãng tại Hà Đông của thương hiệu TOTO – một trong những thương hiệu hàng đầu thế giới trong lĩnh vực thiết bị vệ sinh đến từ Nhật Bản. Nổi tiếng với công nghệ tiên tiến, thiết kế tinh tế và tính năng thông minh, thiết bị vệ sinh TOTO mang lại trải nghiệm hoàn hảo cho người dùng.
Nằm tại đường Lê Trọng Tấn - Hà Đông - Hà Nội, showroom TOTO Cường Quốc mang đến không gian trưng bày hiện đại và sang trọng, giúp khách hàng dễ dàng trải nghiệm các sản phẩm thực tế trước khi đưa ra lựa chọn.

Với sứ mệnh mang đến cho khách hàng những sản phẩm chất lượng cao và dịch vụ vượt trội, chúng tôi cam kết cung cấp đầy đủ các dòng sản phẩm chính hãng từ TOTO bao gồm bồn cầu, chậu lavabo, vòi sen, bồn tắm... Bên cạnh đó là chế độ bảo hành đầy đủ, giá cả cạnh tranh cùng nhiều chương trình ưu đãi hấp dẫn.
Đến với showroom Lê Trọng Tấn, khách hàng không chỉ sở hữu những sản phẩm đẳng cấp từ TOTO mà còn nhận được sự phục vụ chuyên nghiệp và đáng tin cậy, khẳng định giá trị và uy tín của một đại lý phân phối ủy quyền chính hãng tại khu vực.


Showroom TOTO Cường Quốc tại Lê Trọng Tấn - Hà Đông
Khách hàng đánh giá, nhận xét
0/5
0 đánh giá & nhận xétBạn đã dùng sản phẩm này?
Gửi đánh giá của bạnHỏi và đáp (0 bình luận)