
Đặc điểm nổi bật của chậu rửa mặt đặt bàn TOTO LT4704G19#XW - Chậu vành mỏng Linear Ceram
Chậu rửa mặt LT4704G19#XW là một trong những sản phẩm nổi bật thuộc dòng chậu đặt dương bàn cao cấp của thương hiệu TOTO đến từ Nhật Bản. Sản phẩm sở hữu thiết kế hiện đại, tinh tế và mang đậm dấu ấn thẩm mỹ đương đại, là lựa chọn lý tưởng cho những không gian phòng tắm sang trọng và đẳng cấp.
Điểm nổi bật đầu tiên của chậu lavabo TOTO LT4704G19#XW chính là gam màu trắng đầy cuốn hút. Màu trắng không chỉ mang lại cảm giác thanh lịch, sang trọng, mà còn dễ dàng phối hợp với nhiều phong cách nội thất khác nhau, từ hiện đại tối giản đến cổ điển tinh tế.
Chậu rửa còn được ứng dụng công nghệ men sứ CeFiONtect độc quyền của TOTO – một trong những công nghệ tiên tiến nhất hiện nay trong ngành sản xuất sứ vệ sinh. Lớp men siêu mịn này giúp bề mặt chậu hạn chế tối đa sự bám bẩn và vi khuẩn, từ đó giúp việc vệ sinh trở nên đơn giản và nhanh chóng hơn bao giờ hết.


Ảnh thực tế chậu vành mỏng Linear Ceram TOTO LT4704G19#XW
Chậu được thiết kế đặt dương bàn giúp tôn lên toàn bộ vẻ đẹp của hình khối và màu sắc, đồng thời tạo điểm nhấn nổi bật cho khu vực lavabo. Với thiết kế hình oval mềm mại, bo tròn các góc cạnh, chậu mang lại cảm giác thanh thoát và hài hòa, phù hợp cho cả không gian rộng và hẹp.
Một trong những công nghệ ấn tượng được tích hợp trên chậu rửa đặt bàn TOTO LT4704G19#XW chính là thiết kế vành mỏng Linear Ceram. Đây là công nghệ tiên tiến từ TOTO cho phép tạo ra phần vành chậu chỉ dày 4 mm nhưng vẫn đảm bảo độ cứng và độ bền vượt trội.
Nhờ đó, chậu vừa giữ được kiểu dáng thanh mảnh, hiện đại, vừa đảm bảo tính chắc chắn trong quá trình sử dụng lâu dài. Công nghệ này cũng góp phần giảm trọng lượng chậu, giúp lắp đặt dễ dàng hơn.

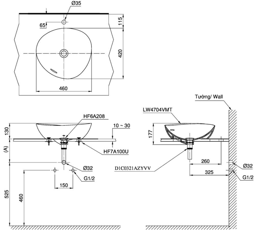
Bản vẽ kỹ thuật chậu rửa đặt bàn TOTO LT4704G19#XW
Đại lý ủy quyền chính hãng của TOTO tại khu vực Hà Đông
Showroom Cường Quốc tự hào là đại lý phân phối ủy quyền chính hãng tại Hà Đông của thương hiệu TOTO – một trong những thương hiệu hàng đầu thế giới trong lĩnh vực thiết bị vệ sinh đến từ Nhật Bản. Nổi tiếng với công nghệ tiên tiến, thiết kế tinh tế và tính năng thông minh, thiết bị vệ sinh TOTO mang lại trải nghiệm hoàn hảo cho người dùng.
Nằm tại đường Lê Trọng Tấn - Hà Đông - Hà Nội, showroom TOTO Cường Quốc mang đến không gian trưng bày hiện đại và sang trọng, giúp khách hàng dễ dàng trải nghiệm các sản phẩm thực tế trước khi đưa ra lựa chọn.


Với sứ mệnh mang đến cho khách hàng những sản phẩm chất lượng cao và dịch vụ vượt trội, chúng tôi cam kết cung cấp đầy đủ các dòng sản phẩm chính hãng từ TOTO bao gồm bồn cầu, chậu lavabo, vòi sen, bồn tắm... Bên cạnh đó là chế độ bảo hành đầy đủ, giá cả cạnh tranh cùng nhiều chương trình ưu đãi hấp dẫn.
Đến với showroom Lê Trọng Tấn, khách hàng không chỉ sở hữu những sản phẩm đẳng cấp từ TOTO mà còn nhận được sự phục vụ chuyên nghiệp và đáng tin cậy, khẳng định giá trị và uy tín của một đại lý phân phối ủy quyền chính hãng tại khu vực.


Showroom TOTO Cường Quốc tại Lê Trọng Tấn - Hà Đông
Khách hàng đánh giá, nhận xét
0/5
0 đánh giá & nhận xétBạn đã dùng sản phẩm này?
Gửi đánh giá của bạnHỏi và đáp (0 bình luận)