
Đặc điểm nổi bật của két nước âm tường TOTO WH172AAT
Két nước âm tường WH172AAT là một sản phẩm tiên tiến và hiện đại được sản xuất bởi thương hiệu TOTO. Sản phẩm được thiết kế chuyên dụng cho các mẫu bồn cầu treo tường TOTO - một xu hướng nội thất nhà vệ sinh ngày càng được ưa chuộng nhờ tính thẩm mỹ cao và khả năng tiết kiệm không gian.
Với cấu trúc âm tường, sản phẩm giúp tối ưu hóa diện tích sử dụng, mang lại vẻ đẹp tinh tế, gọn gàng và hiện đại cho mọi không gian nội thất. Két nước TOTO WH172AAT được chế tạo từ các vật liệu cao cấp như nhựa chịu lực và kim loại chống gỉ, đảm bảo độ bền cao và tuổi thọ lâu dài trong điều kiện môi trường ẩm ướt.
Với phần khung kim loại chắc chắn có khả năng chịu tải lớn cho phép sản phẩm có thể nâng đỡ toàn bộ trọng lượng của bồn cầu treo tường lẫn người sử dụng mà không lo biến dạng hay hư hỏng theo thời gian. Cùng với phần nhựa có khả năng chống thấm, chống ẩm và chống ăn mòn, giúp két nước hoạt động ổn định trong thời gian dài.

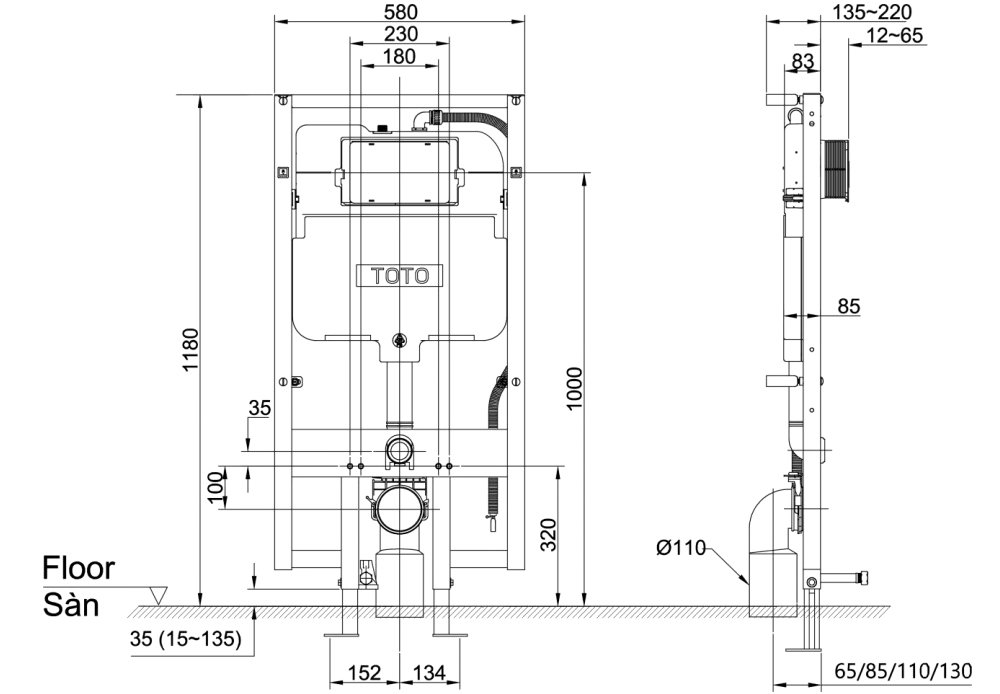
Bản vẽ kỹ thuật két nước âm tường TOTO WH172AAT
Một trong những điểm nổi bật của két nước âm tường TOTO WH172AAT chính là công nghệ tiết kiệm nước ưu việt. TOTO đã tích hợp vào sản phẩm này hệ thống xả kép thông minh, giúp người dùng linh hoạt lựa chọn lượng nước phù hợp cho mỗi lần sử dụng: xả tiểu (3L) và xả đại (4.5L). Kết hợp cùng hệ thống xả tiên tiến của bồn cầu TOTO mà người dùng có thể tiết kiệm lượng nước đáng kể mỗi lần sử dụng, góp phần bảo vệ môi trường và giảm chi phí sinh hoạt hàng tháng.
TOTO WH172AAT còn được thiết kế để dễ dàng lắp đặt ở nhiều loại tường khác nhau như tường gạch hoặc tường bê tông. Bên cạnh đó, mặt nạ điều khiển được bố trí hợp lý, dễ dàng tiếp cận khi cần kiểm tra hay sửa chữa.
Đại lý ủy quyền chính hãng của TOTO tại khu vực Hà Đông
Showroom Cường Quốc tự hào là đại lý phân phối ủy quyền chính hãng tại Hà Đông của thương hiệu TOTO – một trong những thương hiệu hàng đầu thế giới trong lĩnh vực thiết bị vệ sinh đến từ Nhật Bản. Nổi tiếng với công nghệ tiên tiến, thiết kế tinh tế và tính năng thông minh, thiết bị vệ sinh TOTO mang lại trải nghiệm hoàn hảo cho người dùng.
Nằm tại đường Lê Trọng Tấn - Hà Đông - Hà Nội, showroom TOTO Cường Quốc mang đến không gian trưng bày hiện đại và sang trọng, giúp khách hàng dễ dàng trải nghiệm các sản phẩm thực tế trước khi đưa ra lựa chọn.


Với sứ mệnh mang đến cho khách hàng những sản phẩm chất lượng cao và dịch vụ vượt trội, chúng tôi cam kết cung cấp đầy đủ các dòng sản phẩm chính hãng từ TOTO bao gồm bồn cầu, chậu lavabo, vòi sen, bồn tắm... Bên cạnh đó là chế độ bảo hành đầy đủ, giá cả cạnh tranh cùng nhiều chương trình ưu đãi hấp dẫn.
Đến với showroom Lê Trọng Tấn, khách hàng không chỉ sở hữu những sản phẩm đẳng cấp từ TOTO mà còn nhận được sự phục vụ chuyên nghiệp và đáng tin cậy, khẳng định giá trị và uy tín của một đại lý phân phối ủy quyền chính hãng tại khu vực.


Showroom TOTO Cường Quốc tại Lê Trọng Tấn - Hà Đông
Khách hàng đánh giá, nhận xét
0/5
0 đánh giá & nhận xétBạn đã dùng sản phẩm này?
Gửi đánh giá của bạnHỏi và đáp (0 bình luận)