
Đặc điểm nổi bật của bộ sen tắm nóng lạnh TOTO TBS03302V/TBW01008A - Dòng sản phẩm LC
Bộ sen tắm nóng lạnh TOTO TBS03302V/TBW01008A thuộc dòng sản phẩm LC Series là một trong những lựa chọn tuyệt vời cho không gian phòng tắm hiện đại, mang đến trải nghiệm tắm tiện nghi và thư giãn.
Được sản xuất bởi thương hiệu TOTO – một trong những thương hiệu thiết bị vệ sinh hàng đầu đến từ Nhật Bản, sen tắm TBS03302V/TBW01008A không chỉ sở hữu thiết kế tinh tế mà còn tích hợp nhiều công nghệ tiên tiến, phù hợp với nhu cầu sử dụng đa dạng của người tiêu dùng hiện đại.
Bộ sản phẩm bao gồm hai thành phần chính là van sen TBS03302V và bát sen tay TBW01008A (TBW01008V). Van sen TBS03302V được chế tạo từ chất liệu đồng cao cấp, mang lại độ bền vượt trội với khả năng chống ăn mòn tốt. Bề mặt sản phẩm được mạ lớp Niken và Crom sáng bóng, không chỉ tăng thêm tính thẩm mỹ mà còn giúp dễ dàng vệ sinh, chống bám bẩn và duy trì độ mới theo thời gian.

Phần bát sen tay TBW01008A (TBW01008V) được thiết kế nhỏ gọn nhưng chắc chắn, dễ cầm nắm và linh hoạt khi sử dụng. Điểm đặc biệt là bát sen được tích hợp công nghệ massage Comfort Wave êm dịu. Công nghệ này tạo ra những tia nước mạnh kết hợp lực phun nhịp nhàng với hạt nước có kích thước lớn, mang lại trải nghiệm tắm đầy sảng khoái.

Không chỉ nổi bật ở chất lượng và thiết kế, vòi sen tắm TOTO TBS03302V/TBW01008A còn ghi điểm với khả năng tiết kiệm nước hiệu quả, nhờ vào thiết kế đầu phun thông minh và cấu trúc bên trong tối ưu dòng chảy.

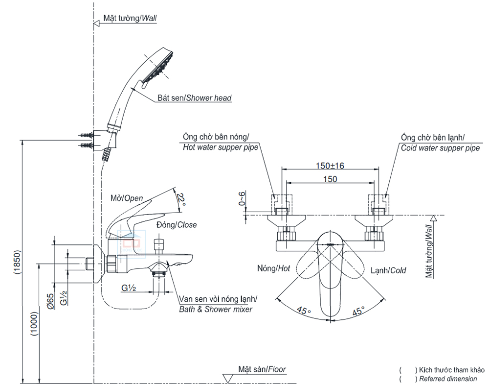
Bản vẽ kỹ thuật sen tắm TOTO TBS03302V/TBW01008A
Đại lý ủy quyền chính hãng của TOTO tại khu vực Hà Đông
Showroom Cường Quốc tự hào là đại lý phân phối ủy quyền chính hãng tại Hà Đông của thương hiệu TOTO – một trong những thương hiệu hàng đầu thế giới trong lĩnh vực thiết bị vệ sinh đến từ Nhật Bản. Nổi tiếng với công nghệ tiên tiến, thiết kế tinh tế và tính năng thông minh, thiết bị vệ sinh TOTO mang lại trải nghiệm hoàn hảo cho người dùng.
Nằm tại đường Lê Trọng Tấn - Hà Đông - Hà Nội, showroom TOTO Cường Quốc mang đến không gian trưng bày hiện đại và sang trọng, giúp khách hàng dễ dàng trải nghiệm các sản phẩm thực tế trước khi đưa ra lựa chọn.


Với sứ mệnh mang đến cho khách hàng những sản phẩm chất lượng cao và dịch vụ vượt trội, chúng tôi cam kết cung cấp đầy đủ các dòng sản phẩm chính hãng từ TOTO bao gồm bồn cầu, chậu lavabo, vòi sen, bồn tắm... Bên cạnh đó là chế độ bảo hành đầy đủ, giá cả cạnh tranh cùng nhiều chương trình ưu đãi hấp dẫn.
Đến với showroom Lê Trọng Tấn, khách hàng không chỉ sở hữu những sản phẩm đẳng cấp từ TOTO mà còn nhận được sự phục vụ chuyên nghiệp và đáng tin cậy, khẳng định giá trị và uy tín của một đại lý phân phối ủy quyền chính hãng tại khu vực.


Showroom TOTO Cường Quốc tại Lê Trọng Tấn - Hà Đông
Khách hàng đánh giá, nhận xét
0/5
0 đánh giá & nhận xétBạn đã dùng sản phẩm này?
Gửi đánh giá của bạnHỏi và đáp (0 bình luận)